Vereinsheimumbau 2025 / 2026
Neue Sporträume und Mehrzwecknutzung des Vereinsheims
Unser Vereinsheim am Puckaffer Weg ist in die Jahre gekommen und aus verschiedenen Gründen nicht mehr zeitgemäß:
Demographische Entwicklung und Zusatzbedarf an Sporträumen
Die Bevölkerungsprognose für Duvensteht sagt für die nächsten Jahre einen deutlichen Anstieg der Altersgruppe über 65 voraus. Vor diesem Hintergrund ist damit zu rechnen, dass die Nachfrage nach Sportangeboten für Senioren steigen wird. Darüber hinaus wird durch den Bau der öffentlich-rechtlichen Unterkunft Bedarf an integrativen Angeboten in Duvenstedt entstehen. Beide Themenbereiche erfordern zusätzliche Räume für Sportangebote, da aufgrund der Nutzung der Sporthallen durch die Schule bis 16:00 tagsüber keine ausreichenden Räume für Sportangebote für Senioren und kleine Kinder zur Verfügung stehen.
Kein Markt für eine auskömmliche Vereinsgaststätte
Das veränderte Freizeit- und Konsumverhalten hat in den vergangenen 20 Jahren dazu geführt, dass die Vereinsgaststätte immer weniger nachgefragt wurde. Dies ist ein Muster, dass die überwiegende Anzahl der Sportvereine trifft, da etwaige Betreiber nur eine geringe Aussich auf einen wirtschaftlichen Betrieb der Gaststätte haben. Entsprechend ist die DSV-Vereinsgaststätte seit dem Ende der Corona-Pandemie nicht mehr vermietet. Stattdessen werden die Räume als Party-Location vermietet.
Keine Beköstigungsmöglichkeiten am Sportplatz
Mitglieder, Zuschauer und Gäste wünschen sich eine Möglichkeit, zumindest am Rande von Spielen und Veranstaltungen Getränke und Snacks kaufen zu können. Aufgrund der Gaststättenthematik wäre eine Kiosklösung ideal, für die jedoch die Räumlichkeiten fehlen
Notwendige energetische und bauliche Sanierung
Das Gebäude wurde Ende der 70er Jahre durch Eigenleistungen errichtet und befindet sich energetisch auf dem Stand dieser Zeit. Die in 2013 erfolgten Sanierungsarbeiten betrafen hauptsächlich die Sanitärbereiche und denFeuchtigkeitsschutz des Kellers mit den Umkleidekabinen. Insbesondere fehlt eine zeitgemäße Wärmedämmung.
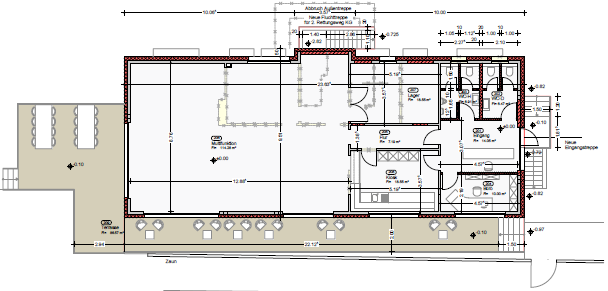
Geplante Maßnahmen
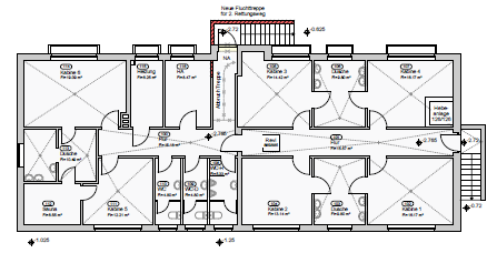
Sporträume
Nutzung für Kinder-, Fitness-, und Seniorensport
Vermietung
Raumnutzung für Veranstaltungen und Vermietungen
Organisation
Vergrößerung der Geschäfsstelle und von Stauraum
Kiosk
zum Verkauf von Getränken und Snacks
Terrasse
zwischen Gebäude und Ballfangzaun mit Kioskzugang
Energie
energetische Sanierung und Dämmung









